x
伤感标签
伤感图片
伤感说说
伤感的句子说说心情
伤感图片
空间说说
心情说说
伤感图片带字
非主流伤感图片
爱情说说
女生伤感说说
人生感悟
唯美伤感图片
女生伤感图片
心情不好的说说
说说带图片
关于生活的说说
唯美意境图片
说说心情短语
悲伤的图片
唯美意境伤感图片
只有字的伤感图片
qq空间说说带图片
个性说说
说说图片
励志名言
伤心的图片
情感口述
一句话经典语录
美甲图片
图片大全
感悟人生的经典句子
短句吧
情感故事
情感图片
微信头像男
动态壁纸
抖音文案
动漫配图
伤感标签
首页
说说
动漫
口述
句子
图片
首页
>
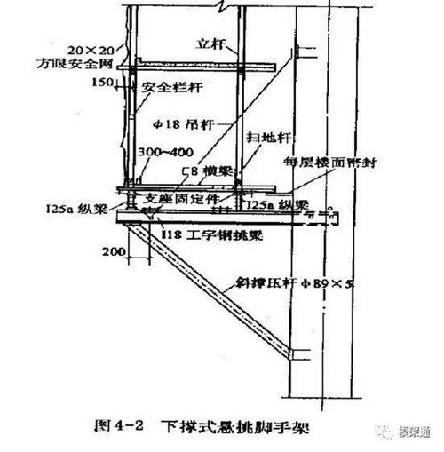
悬挑式脚手架
悬挑式脚手架,悬挑式脚手架扫地杆
分析悬挂式悬挑脚手架的优缺点与构造要求
2,悬挑式脚手架转角处三角支撑架构造 vx公众号:工程
悬挑式脚手架优点
型钢悬挑式脚手架应该注意的问题有哪些!
一种新型短肢工字钢悬挑脚手架——花篮拉杆工具式悬挑架施工工法
更多推荐
悬挑式脚手架扫地杆
盘扣式钢管模板支架
构造柱是什么
悬挑式脚手架的构造
脚手板
悬挑式脚手架立杆间距
玻璃纤维脚手架
脚手架体系
悬挑脚手架预埋件
附着式升降脚手架图片
落地式脚手架
悬挑式卸料平台钢丝绳
扣件式钢管模板
悬挑脚手架搭设规范
门架式脚手架
双立杆脚手架示意图
工具式脚手架
单排脚手架示意图
整体提升脚手架
冲压钢脚手板
悬挑式脚手架工程
斜道脚手板
异形脚手架工程
混凝土灌注桩
悬挑钢梁
扣件式钢管模板支架
脚手架拆除
整体升降式脚手架
挂脚手架
满堂脚手架搭设方案
说说分类
伤感说说
空间说说
心情说说
爱情说说
女生伤感
人生感悟
心情不好
说说带图片
生活的说说
心情短语
qq空间说说
个性说说
励志名言
经典语录
感悟人生
伤感句子
短句吧
情感故事
图片分类
伤感图片
伤感带字
非主流伤感
唯美伤感
女生伤感
唯美意境
悲伤的图片
意境伤感
只有字伤感
说说图片
伤心的图片
美甲图片
图片大全