x
伤感标签
伤感图片
伤感说说
伤感的句子说说心情
伤感图片
空间说说
心情说说
伤感图片带字
非主流伤感图片
爱情说说
女生伤感说说
人生感悟
唯美伤感图片
女生伤感图片
心情不好的说说
说说带图片
关于生活的说说
唯美意境图片
说说心情短语
悲伤的图片
唯美意境伤感图片
只有字的伤感图片
qq空间说说带图片
个性说说
说说图片
励志名言
伤心的图片
情感口述
一句话经典语录
美甲图片
图片大全
感悟人生的经典句子
短句吧
情感故事
情感图片
微信头像男
动态壁纸
抖音文案
动漫配图
伤感标签
首页
说说
动漫
口述
句子
图片
首页
>
照明平面图识图讲解
照明平面图识图讲解,照明灯电路图
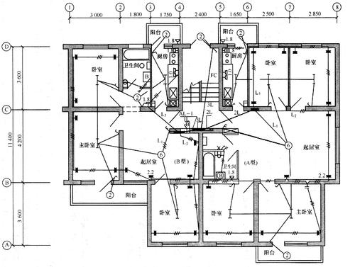
1 某住宅楼电气照明平面图
6 某住宅照明线路施工平面图(1:100)(单位:mm)
天面照明平面图
正常照明单相分支回路电流不宜超过16a,16a是怎么计算
系统讲解:照明系统图和照明平面图的阅读方法,实用干货分享!
更多推荐
照明灯电路图
照明图纸上的图形符号
系统图和平面图的区别
照明平面图识图符号
照明平面图
照明平面图符号和标注
照明电路图符号大全
图纸照明灯图标及符号
照明平面图解析
照明平面图识图教程
照明平面图符号含义
照明平面图怎么看
照明图纸符号大全
照明系统图
照明图纸怎么识图
照明平面图灯具
照明设计平面图
住宅照明平面图
家装照明平面图
照明平面图符号
结构平面图怎么识图
照明平面图怎么画
cad照明平面图
景观照明平面图
工艺管道平面图识图
基础接地平面图识图
桥架平面图识图
建筑平面图的识图方法
污水管网平面图识图
故宫平面图简识图
说说分类
伤感说说
空间说说
心情说说
爱情说说
女生伤感
人生感悟
心情不好
说说带图片
生活的说说
心情短语
qq空间说说
个性说说
励志名言
经典语录
感悟人生
伤感句子
短句吧
情感故事
图片分类
伤感图片
伤感带字
非主流伤感
唯美伤感
女生伤感
唯美意境
悲伤的图片
意境伤感
只有字伤感
说说图片
伤心的图片
美甲图片
图片大全