x
伤感标签
伤感图片
伤感说说
伤感的句子说说心情
伤感图片
空间说说
心情说说
伤感图片带字
非主流伤感图片
爱情说说
女生伤感说说
人生感悟
唯美伤感图片
女生伤感图片
心情不好的说说
说说带图片
关于生活的说说
唯美意境图片
说说心情短语
悲伤的图片
唯美意境伤感图片
只有字的伤感图片
qq空间说说带图片
个性说说
说说图片
励志名言
伤心的图片
情感口述
一句话经典语录
美甲图片
图片大全
感悟人生的经典句子
短句吧
情感故事
情感图片
微信头像男
动态壁纸
抖音文案
动漫配图
伤感标签
首页
说说
动漫
口述
句子
图片
首页
>
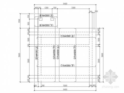
污水处理厂结构图纸
污水处理厂结构图纸,污水处理厂图纸
云端实习 | 赵焱:浅谈城镇污水处理厂运营管理
bardenpho mbr工艺用于污水处理厂的升级改造
62种污水,废水处理典型工艺和工艺流程图
青岛市某污水处理厂工艺流程图
分享75t污水处理设备施工图资料下载
更多推荐
污水处理厂图纸
污水处理厂设计图纸
污水处理厂cad图纸
污水处理厂图例
污水处理厂示意图
污水处理厂平面图
污水处理厂总平面图
污水处理厂效果图
污水处理厂图标
污水处理厂平面图高清
污水处理厂鸟瞰图
污水处理厂模型
污水处理厂工艺流程图
污水处理厂
污水处理厂cad平面图
污水处理厂实景
污水处理厂cad高程图
污水处理厂全景
污水处理厂的工艺流程
污水处理厂平面布置
污水处理厂高清
临时污水处理厂
污水处理厂的cad高清图
污水处理厂卡通
上海污水处理厂
污水处理厂简笔画
子宫图结构示意图
水电图纸入门看图
图纸图案
原子结构示意图
说说分类
伤感说说
空间说说
心情说说
爱情说说
女生伤感
人生感悟
心情不好
说说带图片
生活的说说
心情短语
qq空间说说
个性说说
励志名言
经典语录
感悟人生
伤感句子
短句吧
情感故事
图片分类
伤感图片
伤感带字
非主流伤感
唯美伤感
女生伤感
唯美意境
悲伤的图片
意境伤感
只有字伤感
说说图片
伤心的图片
美甲图片
图片大全