x
伤感标签
伤感图片
伤感说说
伤感的句子说说心情
伤感图片
空间说说
心情说说
伤感图片带字
非主流伤感图片
爱情说说
女生伤感说说
人生感悟
唯美伤感图片
女生伤感图片
心情不好的说说
说说带图片
关于生活的说说
唯美意境图片
说说心情短语
悲伤的图片
唯美意境伤感图片
只有字的伤感图片
qq空间说说带图片
个性说说
说说图片
励志名言
伤心的图片
情感口述
一句话经典语录
美甲图片
图片大全
感悟人生的经典句子
短句吧
情感故事
情感图片
微信头像男
动态壁纸
抖音文案
动漫配图
伤感标签
首页
说说
动漫
口述
句子
图片
首页
>
德州学院南校区平面图
德州学院南校区平面图,德州学院图片高清
忙碌的陪伴 德州学院迎来报到的大一新生
你准备好了吗?|德州
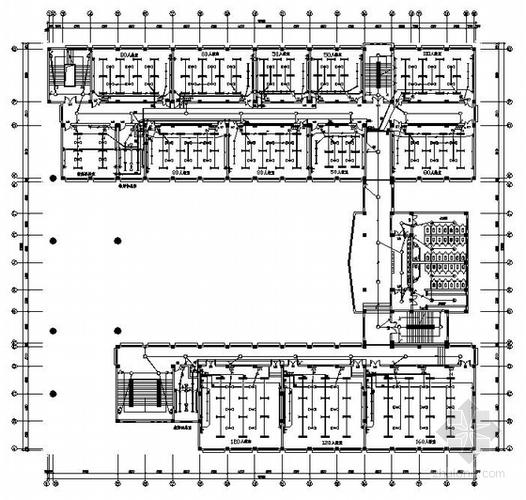
德州某学院教学楼电气设计
德州学院教务管理系统怎么进不去呀
新校区中心-德州学院基建处
更多推荐
德州学院图片高清
德州学院平面图
烟台理工学院太黑暗了
德州学院全景图
山东政法学院 女宿舍
德州学院外国语学院
德州学院校园平面图
德州职业技术学院宿舍
山东交通学院威海校区
泰山学院校徽
德州学院平面图楼号
德州学院照片
德州学院南校区平面图
泰山学院专业
烟台理工
德州学院腾飞广场
山东女子学院校歌
德州学院 校花
菏泽学院logo
德州学院图书馆
德州学院改名德州大学
滨州学院北门女暗号
德州学院附属小学
菏泽学院图片
滨州学院校徽
山东女子大学
烟台大学校园风光
德州学院规划图
德州学院南门
德州技术学院
说说分类
伤感说说
空间说说
心情说说
爱情说说
女生伤感
人生感悟
心情不好
说说带图片
生活的说说
心情短语
qq空间说说
个性说说
励志名言
经典语录
感悟人生
伤感句子
短句吧
情感故事
图片分类
伤感图片
伤感带字
非主流伤感
唯美伤感
女生伤感
唯美意境
悲伤的图片
意境伤感
只有字伤感
说说图片
伤心的图片
美甲图片
图片大全