x
伤感标签
伤感图片
伤感说说
伤感的句子说说心情
伤感图片
空间说说
心情说说
伤感图片带字
非主流伤感图片
爱情说说
女生伤感说说
人生感悟
唯美伤感图片
女生伤感图片
心情不好的说说
说说带图片
关于生活的说说
唯美意境图片
说说心情短语
悲伤的图片
唯美意境伤感图片
只有字的伤感图片
qq空间说说带图片
个性说说
说说图片
励志名言
伤心的图片
情感口述
一句话经典语录
美甲图片
图片大全
感悟人生的经典句子
短句吧
情感故事
情感图片
微信头像男
动态壁纸
抖音文案
动漫配图
伤感标签
首页
说说
动漫
口述
句子
图片
首页
>
地弹簧调节高低图解
地弹簧调节高低图解,地弹簧门上下调图解
地弹簧种类有哪些 地弹簧开槽施工方法
地弹簧安装注意事项 地弹簧怎么安装
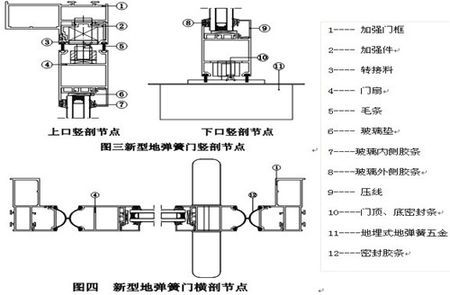
地弹簧结构
玻璃门下沉了 和地板擦一起了,地弹簧怎样调整
厂家供应免挖坑地弹簧门夹不锈钢隐藏式玻璃门液压地弹吉博尼新品
更多推荐
地弹簧门上下调图解
玻璃门怎么调高低图解
地弹簧门左右调整图解
地弹簧门上下调节图解
推拉门下沉怎么调图解
玻璃门下沉怎么调图解
地弹簧调节方法图解
地弹簧调节高低
地弹簧门调节方法图解
地弹簧怎么调左右图解
地弹簧调节方法
gmt地弹簧调节方法图解
地弹簧结构图解
地弹簧门调节
地弹簧维修方法图解
地弹簧维修图解
地弹簧拆解图
地弹簧门安装方法图解
地弹簧玻璃门拆卸图解
有框地弹簧门拆卸图解
gmt地弹簧h220b调节
地弹簧
地弹簧门安装尺寸图
地弹簧门效果图
地弹簧门图集
地弹簧门图片大全
地弹簧玻璃门图片
地弹簧安装
地弹簧门下垂刮地面
电动地弹簧
说说分类
伤感说说
空间说说
心情说说
爱情说说
女生伤感
人生感悟
心情不好
说说带图片
生活的说说
心情短语
qq空间说说
个性说说
励志名言
经典语录
感悟人生
伤感句子
短句吧
情感故事
图片分类
伤感图片
伤感带字
非主流伤感
唯美伤感
女生伤感
唯美意境
悲伤的图片
意境伤感
只有字伤感
说说图片
伤心的图片
美甲图片
图片大全