x
伤感标签
伤感图片
伤感说说
伤感的句子说说心情
伤感图片
空间说说
心情说说
伤感图片带字
非主流伤感图片
爱情说说
女生伤感说说
人生感悟
唯美伤感图片
女生伤感图片
心情不好的说说
说说带图片
关于生活的说说
唯美意境图片
说说心情短语
悲伤的图片
唯美意境伤感图片
只有字的伤感图片
qq空间说说带图片
个性说说
说说图片
励志名言
伤心的图片
情感口述
一句话经典语录
美甲图片
图片大全
感悟人生的经典句子
短句吧
情感故事
情感图片
微信头像男
动态壁纸
抖音文案
动漫配图
伤感标签
首页
说说
动漫
口述
句子
图片
首页
>
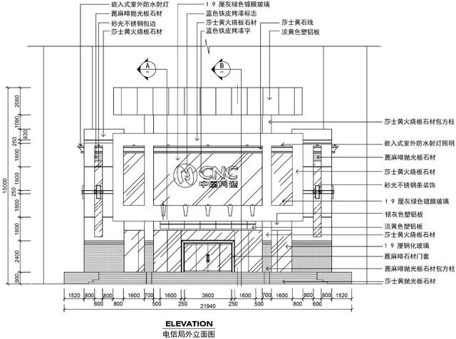
顶棚图cad怎么画
顶棚图cad怎么画,cad顶棚布置图怎么画
part 3-cad家装图纸 家装图纸 各类cad家装施工图纸 以顶棚 节点
[分享]两厅装修图资料下载
【干货分享】 中式整木背景墙吊顶cad合集
素材cad室内大样这施工图纸原来还剩这么多细节
常用吊顶cad参考案例
更多推荐
cad顶棚布置图怎么画
顶棚图怎么画
cad顶棚平面图图片
cad立面图怎么画
cad剖面图怎么画
cad轴测图怎么画
cad画墙体怎么画
顶棚图cad
cad画角度怎么画
cad顶棚图效果图大全
顶棚图cad天花
cad局部放大图怎么画?
cad窗户怎么画
cad门怎么画
餐厅顶棚图cad
办公室顶棚图cad
cad开关布置图怎么画
cad楼梯怎么画
cad箭头怎么画
cad柱子怎么画
cad推拉门怎么画
新手cad画平面图
cad指北针怎么画
cad画三维图
cad螺纹怎么画
cad画平面图详细步骤
cad画门
顶棚图手绘
cad画圆
顶棚平面图
说说分类
伤感说说
空间说说
心情说说
爱情说说
女生伤感
人生感悟
心情不好
说说带图片
生活的说说
心情短语
qq空间说说
个性说说
励志名言
经典语录
感悟人生
伤感句子
短句吧
情感故事
图片分类
伤感图片
伤感带字
非主流伤感
唯美伤感
女生伤感
唯美意境
悲伤的图片
意境伤感
只有字伤感
说说图片
伤心的图片
美甲图片
图片大全