x
伤感标签
伤感图片
伤感说说
伤感的句子说说心情
伤感图片
空间说说
心情说说
伤感图片带字
非主流伤感图片
爱情说说
女生伤感说说
人生感悟
唯美伤感图片
女生伤感图片
心情不好的说说
说说带图片
关于生活的说说
唯美意境图片
说说心情短语
悲伤的图片
唯美意境伤感图片
只有字的伤感图片
qq空间说说带图片
个性说说
说说图片
励志名言
伤心的图片
情感口述
一句话经典语录
美甲图片
图片大全
感悟人生的经典句子
短句吧
情感故事
情感图片
微信头像男
动态壁纸
抖音文案
动漫配图
伤感标签
首页
说说
动漫
口述
句子
图片
首页
>
总平标高
总平标高,平面图标高
的地形地物 道路和明沟等的起点,变坡点,转折点,终点的标高与坡向箭头
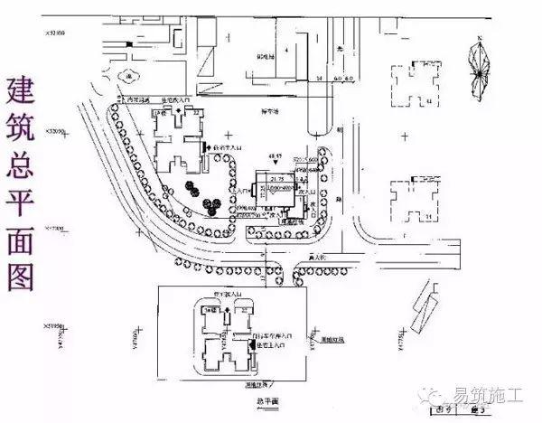
[分享]施工图的总平面图识读
看新建房屋底层室内地面和室外整平地面的绝对标高,可知室内外地面的
作为"市集"的菜场▲二层平台,连接城市公园与农田的公共活动空间▲西
河西桃花源幼儿园总平调整 规划建成24班
更多推荐
平面图标高
标高
室内标高
建筑标高
剖面标高
立面标高
结构标高
标高图纸
桩顶标高
层高和标高图解
标高算法
标高基准点
立面图标高
剖面图标高
标高符号
室外地坪标高
建筑标高图解
建筑总平
cad标高
建筑标高符号
施工总平图
高清总平图
标高符号尺寸
总平
总平面图
建筑总平图
给排水管道标高图解
总平图
总平图与平面图区别
总平图景观
说说分类
伤感说说
空间说说
心情说说
爱情说说
女生伤感
人生感悟
心情不好
说说带图片
生活的说说
心情短语
qq空间说说
个性说说
励志名言
经典语录
感悟人生
伤感句子
短句吧
情感故事
图片分类
伤感图片
伤感带字
非主流伤感
唯美伤感
女生伤感
唯美意境
悲伤的图片
意境伤感
只有字伤感
说说图片
伤心的图片
美甲图片
图片大全