x
伤感标签
伤感图片
伤感说说
伤感的句子说说心情
伤感图片
空间说说
心情说说
伤感图片带字
非主流伤感图片
爱情说说
女生伤感说说
人生感悟
唯美伤感图片
女生伤感图片
心情不好的说说
说说带图片
关于生活的说说
唯美意境图片
说说心情短语
悲伤的图片
唯美意境伤感图片
只有字的伤感图片
qq空间说说带图片
个性说说
说说图片
励志名言
伤心的图片
情感口述
一句话经典语录
美甲图片
图片大全
感悟人生的经典句子
短句吧
情感故事
情感图片
微信头像男
动态壁纸
抖音文案
动漫配图
伤感标签
首页
说说
动漫
口述
句子
图片
首页
>
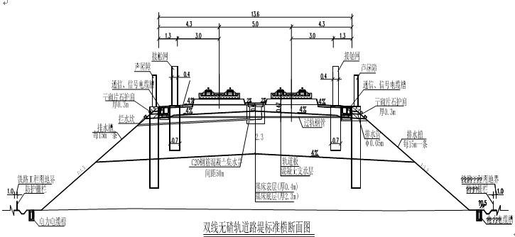
护肩路基图片
护肩路基图片,路基图片
2,sidk3 800-sidk4 460路基段左侧空心块护坡施工,右侧护肩施工
⑤护肩路基 用于坚硬岩石陡坡地段. 填方不大,不宜填筑时.
路基附属骨架护坡施工水解酸化池池壁混凝土浇筑水解酸化池混凝土
铁路路基护肩是指哪个部位?
造价工程师土建工程复习要点护肩路基
更多推荐
路基图片
道路护肩图片
护肩路基实物图片
护脚路基
路基护肩标准图
护肩保暖肩周炎
护肩墙标准图
路基护肩
护脚路基图片
护肩路基和护脚路基
护肩路基示意图
护肩路基
护肩和护脚图片
护肩保暖女士护肩
砌石路基图片
路床与路基图解
路基路床图示
路基横断面图
路基路堑
盔甲护肩
护肩套大全
护肩套
护肩
护肩颈的保暖坎肩
路床与路基
路基图示
护肩套胳膊
运动护肩
护肩墙
男士护肩套
说说分类
伤感说说
空间说说
心情说说
爱情说说
女生伤感
人生感悟
心情不好
说说带图片
生活的说说
心情短语
qq空间说说
个性说说
励志名言
经典语录
感悟人生
伤感句子
短句吧
情感故事
图片分类
伤感图片
伤感带字
非主流伤感
唯美伤感
女生伤感
唯美意境
悲伤的图片
意境伤感
只有字伤感
说说图片
伤心的图片
美甲图片
图片大全