x
伤感标签
伤感图片
伤感说说
伤感的句子说说心情
伤感图片
空间说说
心情说说
伤感图片带字
非主流伤感图片
爱情说说
女生伤感说说
人生感悟
唯美伤感图片
女生伤感图片
心情不好的说说
说说带图片
关于生活的说说
唯美意境图片
说说心情短语
悲伤的图片
唯美意境伤感图片
只有字的伤感图片
qq空间说说带图片
个性说说
说说图片
励志名言
伤心的图片
情感口述
一句话经典语录
美甲图片
图片大全
感悟人生的经典句子
短句吧
情感故事
情感图片
微信头像男
动态壁纸
抖音文案
动漫配图
伤感标签
首页
说说
动漫
口述
句子
图片
首页
>
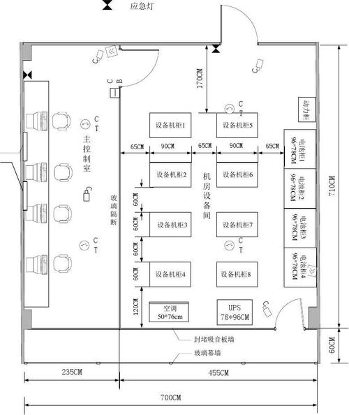
电脑机房布局
电脑机房布局,空调机房平面图
用visio画机房布局
机房布局图(部分)
机房平面布置图.doc
机房机柜布置示意图
机房平面图
更多推荐
空调机房平面图
机房布局平面图
发电机房
设备机房
机房设计
机房设计图纸
监控机房效果图
机房平面布置图
机房图标
机房布局
IDC机房
机房空调系统
机房桥架安装示意图
模块化机房
网络机房
服务器机房
通信机房
机房建设
电脑机房
风机房
机房精密空调
弱电机房
机房空调
机房机柜布局
数据机房
机房机柜
机房设计效果图
大数据中心机房
机房示意图
数据中心机房效果图
说说分类
伤感说说
空间说说
心情说说
爱情说说
女生伤感
人生感悟
心情不好
说说带图片
生活的说说
心情短语
qq空间说说
个性说说
励志名言
经典语录
感悟人生
伤感句子
短句吧
情感故事
图片分类
伤感图片
伤感带字
非主流伤感
唯美伤感
女生伤感
唯美意境
悲伤的图片
意境伤感
只有字伤感
说说图片
伤心的图片
美甲图片
图片大全